Bei dieser besonderen Immobilie handelt es sich um ein sehr gepflegtes und freistehendes Mehrfamilienhaus aus dem Baujahr 1904 auf einem 2.568 m² großen Grundstück incl. ca. 800 m² Grünland und einem Garagenhof mit 17 Garagen in Oberhausen-Sterkrade.
| Haustyp: | Mehrfamilienhaus mit Gewerbeeinheit |
| Wohnfläche: | ca. 440m² |
| Grundstück: | ca. 2.568m² |
| Baujahr: | ca. 1904 |
| PLZ/Ort: | 46149 Oberhausen |
| Kaufpreis: | 799.000,-€ zzgl. 4,76% Käufercourtage inkl. MwSt. |
Beschreibung
Bei dieser besonderen Immobilie handelt es sich um ein sehr gepflegtes und
freistehendes Mehrfamilienhaus aus dem Baujahr 1904 auf einem 2.568 m² großen
Grundstück incl. ca. 800 m² Grünland und einem Garagenhof mit 17 Garagen in
Oberhausen-Sterkrade.
In diesem Mehrfamilienhaus sind vier Mietwohnungen und eine gewerbliche Einheit zur Vermietung verfügbar. Zwei Mietwohnungen von den insgesamt vier Mietwohnungen und die gewerbliche Einheit sind vermietet.
Drei Wohnungen haben ca. 70 m² und eine Wohnungen verfügen über ca. 90 m². Alle Wohnungen haben einen guten Grundriss und sind gut geschnittenen. Die vermietete 90 m² Wohnung ist mit einem Parkettboden ausgestattet und verfügt außerdem über elektrische Röllläden.
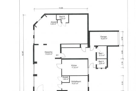
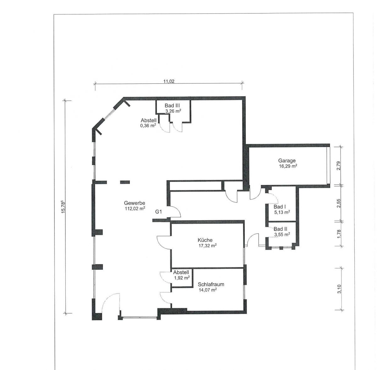
Die gewerbliche Einheit ist ca. 173 m² groß und mit einer Küche und einer sanitären Anlagen innerhalb der Einheit ausgestattet.
Diese großzügige Immobilie ist vollunterkellert. Der Keller bietet sehr viel Platz, jedem Mieter steht ein Keller zur Verfügung. Außerdem findet man dort auch den Heizungs- und Waschkeller.
Als weitere Nutzfläche steht ein großer Dachboden zur Verfügung.
Dieses Mehrfamilienhaus mit dem insgesamt 2.568 m² großen Grundstück, davon ca. 800 m² Grünfläche und den 17 Garagen ist äußerst gepflegt.
Das gesamte Objekt wurde im Laufe der Jahre immer wieder gut instandgehalten. Viele Wasser- und auch Stromleitungen wurden im Laufe der Jahre erneuert. Auch die Haustür wurde ersetzt.
Alle Fenster bis zur 1. Etage wurden durch doppeltverglaste Kunststofffenster ersetzt. Die letzte größere Renovierung wurde in die 17 Garagen investiert, alle 17 Garagentore und die Haustür des Mehrfamilien hauses wurde im Jahr 2024 erneuert.
Die gesamten Ist-Mieteinnahmen der Immobilie betragen zur Zeit pro Jahr 26.919,36 €, könnten aber durch Vollvermietung und bisher nicht stattgefundenen Mieterhöhungen der einzelnen Wohnungen
und Garagen auf eine ca. 58.735,92 € Soll-Mieteinnahme gesteigert werden.
Eine Besichtigung lohnt sich!
Ausstattung:
- Freistehendes Mehrfamilienhaus
- Große gepflasterte Hoffläche mit 17 Garagen
- Große Grünlandfläche mit ca. 800m²
- SEHR GEPFLEGT und laufend modernisiert
- Voll unterkellert
Daten
| Haustyp: | Mehrfamilienhaus mit Gewerbeeinheit |
| Wohnfläche: | ca. 440m² |
| Nutzfläche: | ca. 30m² |
| Grundstücksfläche: | ca. 2.568m² |
| Etagen: | 2 |
| Zimmer: | 13 |
| Schlafzimmer: | 8 |
| Badezimmer: | 7 |
| Garage: | 17 |
| Keller: | ja |
| Objektzustand: | gepflegt |
| Heizungsart: | Zentralheizung |
| Energieausweis: | Ausweisart: Bedarfsausweis, Energiebedarf: 179,9kWh7(m²*a), Energieträger: Gas |
| Ist-Mieteinnahmen: | 14.367,36€ p.a. |
| Kaufpreis: | 799.000,-€ |
| Provision für Käufer: | Kaufpreis zzgl. 4,76% Käufercourtage inkl. MwSt. |
Lage
Diese interessante Immobilie liegt in einer befahrenen Straße in einem Mischgebiet von
Oberhausen-Sterkrade. Alle Dinge des täglichen Lebens wie Einkaufsmöglichkeiten,
Arztpraxen, Kindergärten und Grundschulen sind in unmittelbarer Nähe zu erreichen.
Im Zentrum von Oberhausen sind weiterführende Schulen, Krankenhaus und Behörden sowie Sport- und Freizeitstätten vorhanden. Die Autobahn A3, A42 ist in wenigen Autominuten zu
erreichen.
Kontakt & Anfrage
Anfrage senden
Kontaktdaten
Kontakt
Immobilien Schledorn
Detlef Schledorn
Postweg 142 - 144
46145 Oberhausen
| Telefon: | +49 (0)208 / 386 71 71 |
| Fax: | +49 (0)208 / 386 71 70 |
| E-Mail: |
Anfahrt
Öffnungszeiten
Montag - Donnerstag: 9.30 - 17.00 Uhr
Freitag: 9.30 - 15.00 Uhr
sowie nach Vereinbarung
Das Angebot ist freibleibend. Alle Angaben nach bestem Wissen, Irrtum und Zwischenverkauf vorbehalten. Die Flächen wurden nicht durch ein Aufmaß vor Ort überprüft, Grundlage sind die uns vorliegenden Bauzeichnungen, Angaben des Eigentümers bzw. Auftraggebers und die Wohnflächenberechnungen des Architekten. Für die Richtigkeit und Vollständigkeit der Angaben des Objektes betreffend übernehmen wir trotz sorgfältiger Bearbeitung keine Gewähr. Dieses Exposé ist eine Vorabinformation.
