Diese gut aufgeteilte 3,5 Zimmer Eigentumswohnung befindet sich im 1. Obergeschoss eines gepflegten Mehrfamilienhaus.
| Wohnungstyp: | Etagenwohnung |
| Wohnfläche: | ca. 79,66m² |
| Grundstück: | ca. 3.776m² (Gesamtgrundstück) |
| Baujahr: | ca. 1972 |
| PLZ/Ort: | 46147 Oberhausen |
| Kaufpreis: | 169.000,-€ zzgl. 3,57% inkl. 19% MwSt. Käufercourtage |
Beschreibung
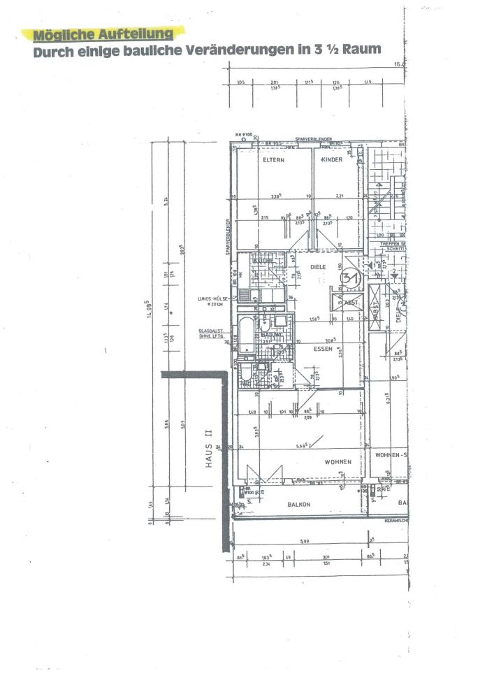
Sie hat insgesamt ca. 80 m² und ist zur Zeit in 2 kleine Wohnungen aufgeteilt. Die kleinere Wohnung verfügt über 36 m² Wohnfläche mit einem großen und hellen Wohn– und Schlafraum, Küche, Duschbad und Hänge-WC.
In 2009 wurde die Küche neu gefliest und mit einer neuen Einbauküche ausgestattet, sowie das Duschbad komplett (Fliesen und Sanitärausstattung) erneuert.
Der Wohn-/Schlafraum und die Diele sind mit Parkettboden, Küche und Bad mit Fliesenboden ausgestattet. Ein Balkon ist nicht vorhanden.
Die größere Wohnung verfügt über 44 m² Wohnfläche mit einem lichtdurchfluteten Wohn-/Schlafraum mit integrierter Küchenzeile. Wohnraum und Diele sind ebenfalls mit Parkettboden, das Bad mit Fliesenboden ausgestattet. Der großzügige Balkon zur Süd-/ Westseite lädt zu gemütlichen „Freiluftstunden“ ein.
Beide Wohnungen könnten auch wieder zusammengeführt werden. Die Raumaufteilung gem. Skizze verfügt dann mit 3,5 Zimmer über eine Wohnfläche von ca. 79,66 m².
Der Abschluss der energetischen Fassaden-Sanierung (16 cm dick) zur rückwärtigen Hausein- gangsseite, erfolgte im August 2025. Hierbei wurden die PVC-Wohnungsfenster 3-fach Verglasung und Rollläden, sowie die Fenster im Treppenhaus erneuert.
Außerdem steht ein eigener Kellerraum und ein Gemeinschafts-Waschkeller mit mehreren MIELE -Waschmaschinen (Münzen) und entsprechenden Trockenräumen zur Verfügung.
Ein Aufzug vom Kellergeschoß bis auf die Wohnetage rundet das ganze ab.
Eine Besichtigung lohnt sich.
Ausstattung:
•Gepflegtes Mehrfamilienhaus
•Schöner Balkon
•Beste Raumaufteilung
•Aufzug
•Ruhige Wohnlage
Daten
| Wohnungstyp: | Etagenwohnung |
| Wohnfläche: | ca. 79,66m² |
| Grundstücksfläche: | ca. 3.776m² (Gesamtgrundstück) |
| Etage: | 1 |
| Zimmer: | 3,5 |
| Schlafzimmer: | 2 |
| Badezimmer: | 1 |
| Keller: | ja |
| Objektzustand: | gepflegt |
| Heizungsart: | Gas |
| Energieausweis: | Ausweisart: Verbrauchsausweis Verbrauch: 189 kWh(m²*a) -Energieträger: Gas |
| Hausgeld: | 346,00€ inkl. 72,00€ Rücklagenbildung |
| Mieteinnahmen: | 6.240,00€ p.a. |
| Bezugsfrei ab: | nach Absprache |
| Kaufpreis: | 169.000,-€ |
| Provision für Käufer: | Kaufpreis zzgl. 3,75% inkl. 19% MwSt. |
Lage
Diese interessante Immobilie liegt in zentraler Lage von Oberhausen-Königshardt.
Alle Dinge des täglichen Lebens wie Einkaufsmöglichkeiten, Arztpraxen, Kindergärten und Grundschulen sind in unmittelbarer Nähe zu erreichen. Zahlreiche Buslinien der VRR bieten ein umfassendes Angebot in das Nahverkehrsnetz und machen ggf. das Auto überflüssig. Der Stadtteil Königshardt liegt im grünen Norden von Oberhausen und ist als naturnahes gehobenes Wohngebiet sehr beliebt. In diesem schönen Ortsteil finden sie ländliche Idylle mit städtischer Lebensqualität. Die umliegenden Waldgebiete Hiesfelder Wald und Sterkrader Wald bieten Raum für Freizeitakti- vitäten. Joggen, Rad fahren oder einfach nur einen Spaziergang machen - gleich vor ihrer Haustür geht´s los. Im Zentrum von Oberhausen sind weiterführende Schulen, Krankenhaus und Be- hörden sowie Sport- und Freizeitstätten vorhanden. Die Autobahn A2, A3, A42 ist in wenigen Autominuten zu erreichen.
Kontakt & Anfrage
Anfrage senden
Kontaktdaten
Kontakt
Immobilien Schledorn
Detlef Schledorn
Postweg 142 - 144
46145 Oberhausen
| Telefon: | +49 (0)208 / 386 71 71 |
| Fax: | +49 (0)208 / 386 71 70 |
| E-Mail: |
Anfahrt
Öffnungszeiten
Montag - Donnerstag: 9.30 - 17.00 Uhr
Freitag: 9.30 - 15.00 Uhr
sowie nach Vereinbarung
Das Angebot ist freibleibend. Alle Angaben nach bestem Wissen, Irrtum und Zwischenverkauf vorbehalten. Die Flächen wurden nicht durch ein Aufmaß vor Ort überprüft, Grundlage sind die uns vorliegenden Bauzeichnungen, Angaben des Eigentümers bzw. Auftraggebers und die Wohnflächenberechnungen des Architekten. Für die Richtigkeit und Vollständigkeit der Angaben des Objektes betreffend übernehmen wir trotz sorgfältiger Bearbeitung keine Gewähr. Dieses Exposé ist eine Vorabinformation.
