Top saniertes Zweifamilienhaus mit zwei Wohnungen - langfristig vermietet in in Oberhausen-Rothebusch
Dieses gepflegte und umfassend sanierte Zweifamilienhaus aus dem Jahr 1930 vereint den Charme eines klassischen Altbaus mit zeitgemäßem und modernem Wohnkomfort. Die Immobilie eignet sich hervorragend als Kapitalanlage und bietet dank bestehender Miet-Verhältnisse eine solide und planbare Rendite.
| Haustyp: | 2 Familienhaus |
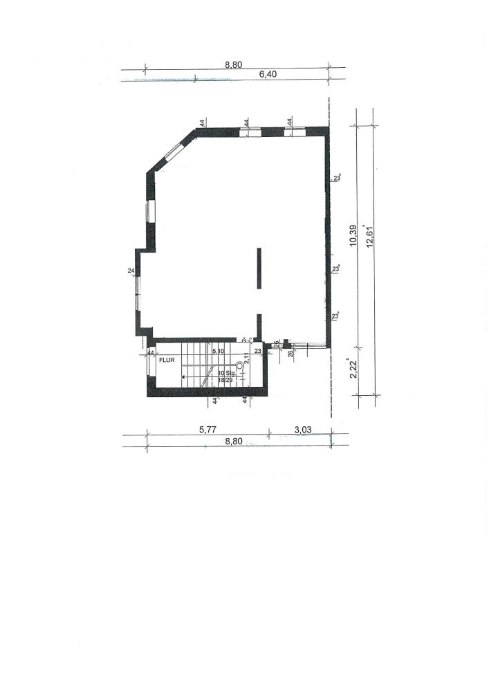
| Wohnfläche: | ca. 210m² (Erdgeschoss ca. 140m² und Dachgeschoss ca. 70m²) |
| Grundstück: | ca. 200m² (Gesamtgrundstück) |
| Baujahr: | ca. 1930 |
| PLZ/Ort: | 46117 Oberhausen |
| Kaufpreis: | 439.000,00 € zzgl. 2,38% Käufercourtage inkl. MwSt. |
| Kaltmiete: | 27.960,00 € p.a. |
Beschreibung
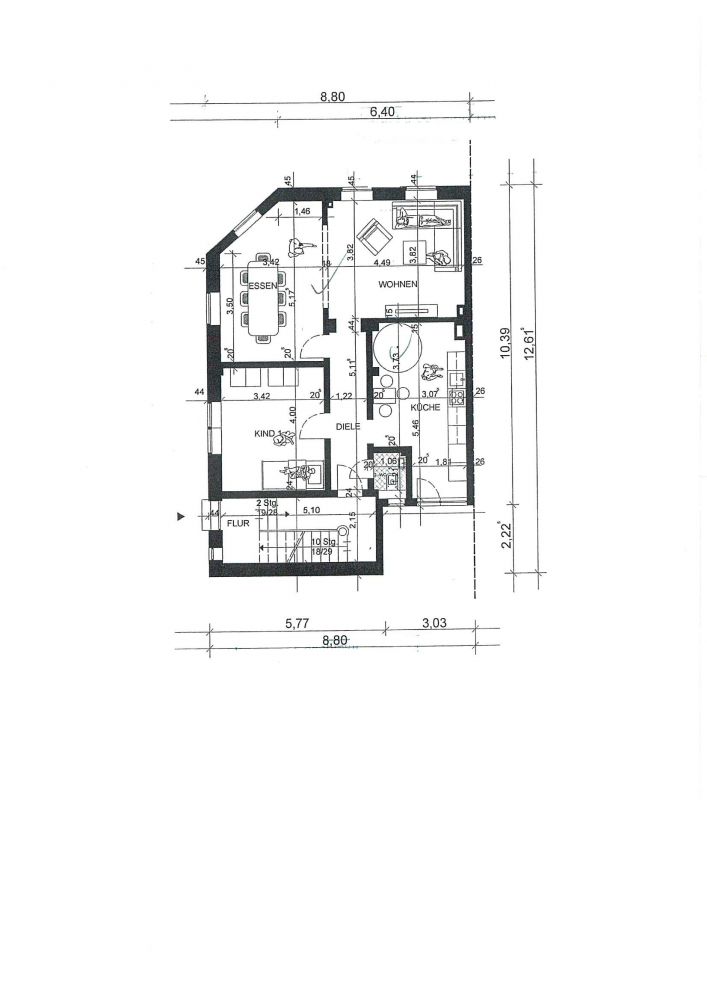
Die Wohnung im Erdgeschoss und im 1. Obergeschoss wurde durch einen
genehmigten Durchbruch zu einer Maisonette-Wohnung zusammengeführt.
Eine stilvolle interne Treppe in der modernen Küche verbindet beide Ebenen und
schafft ein offenes, zeitgemäßes Wohngefühl. Außerdem gehört zu dieser
140 m² großen Erdgeschoss-Wohnung auch der Garten mit direktem Zugang und
auch ein modernes neuwertiges Aluminium Carport. Der Mieter dieser Wohnung hat außerdem den Spitzboden gegen eine Mietzahlung von 200,00 € angemietet.
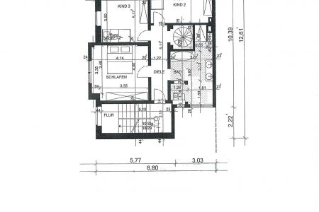
Die Wohnung im Dachgeschoss ist auch sehr modern und hell gestaltet, verfügt auch über ein sehr modernes Bad mit aktuellem Design.
Die Immobilie hat eine sehr gute Bausubstanz, ist umfangreich saniert und ist in einem sehr gepflegtem Zustand. Im Jahr 2021 wurden die Stromleitungen, die Zuwasser-Leitungen und alle Beläge der Böden und der Wände erneuert, das Carport entstand, die Fassade wurde gestrichen, außerdem wurde eine Video-Haussprechanlage installiert.
Eine Besichtigung lohnt sich.
Ausstattung:
•Erdgeschoss-Wohnung über 2 Etagen
•Umfassend saniert und sehr gepflegt
•Moderne Bäder und Küchen
•Effiziente Heiztechnik - Heizung wurde 2014 erneuert/Heizkörper in 2017
•Gepflegte Außenanlage
Daten
| Haustyp: | 2 Familienhaus |
| Wohnfläche: | ca. 210 m² (Erdgeschoss ca. 140m² und Dachgeschoss ca. 70m²) |
| Grundstücksfläche: | ca. 200 m² (Gesamtgrundstück) |
| Etagen: | 2 |
| Zimmer: | 8 |
| Schlafzimmer: | 4 |
| Badezimmer: | 5 |
| Stellplatz: | ja |
| Objektzustand: | modernisiert |
| Heizungsart: | Zentralheizung |
| Energieausweis: | Ausweisart: Verbrauchsausweis Verbrauch: 146,32 kWh(m²*a) -Energieträger: Erdgas |
| Mieteinnahmen: | 27.960,00 € p.a. |
| Kaufpreis: | 439.000,00 € |
| Provision für Käufer: | Kaufpreis zzgl. 2,38% MwSt. |
Lage
Das Zweifamilienhaus liegt in einer ruhigen Nebenstraße dennoch sind alle Dinge des täglichen Lebens wie Einkaufsmöglichkeiten, Arztpraxen, Kindergärten und Grundschulen in unmittelbarer Nähe. Im Zentrum von Oberhausen sind weiterführende Schulen, Krankenhaus und Behörden sowie Sport- und Freizeitstätten vorhanden. Auch die ÖVM und die Autobahnen A3 und A42 sind in wenigen Minuten zu erreichen. Der Ortsteil nennt sich Oberhausen-Rothebusch.
Kontakt & Anfrage
Anfrage senden
Kontaktdaten
Kontakt
Immobilien Schledorn
Detlef Schledorn
Postweg 142 - 144
46145 Oberhausen
| Telefon: | +49 (0)208 / 386 71 71 |
| Fax: | +49 (0)208 / 386 71 70 |
| E-Mail: |
Anfahrt
Öffnungszeiten
Montag - Donnerstag: 9.30 - 17.00 Uhr
Freitag: 9.30 - 15.00 Uhr
sowie nach Vereinbarung
Das Angebot ist freibleibend. Alle Angaben nach bestem Wissen, Irrtum und Zwischenverkauf vorbehalten. Die Flächen wurden nicht durch ein Aufmaß vor Ort überprüft, Grundlage sind die uns vorliegenden Bauzeichnungen, Angaben des Eigentümers bzw. Auftraggebers und die Wohnflächenberechnungen des Architekten. Für die Richtigkeit und Vollständigkeit der Angaben des Objektes betreffend übernehmen wir trotz sorgfältiger Bearbeitung keine Gewähr. Dieses Exposé ist eine Vorabinformation.
